V-ház, 2019
“A Budapesthez közeli kistelepülés nem először hívja fel magára a szakmai közvélemény figyelmét. A szép fekvésű település mintha időről időre jelezné abbéli elkötelezettségét, hogy igényt tart és kiáll az építészeti minőség mellett legyen az lakóház vagy középület. Szerencsére egyre hosszabb ez az értéklista, mely a nagyszerű alkotásokat és alkotóikat tartalmazza.
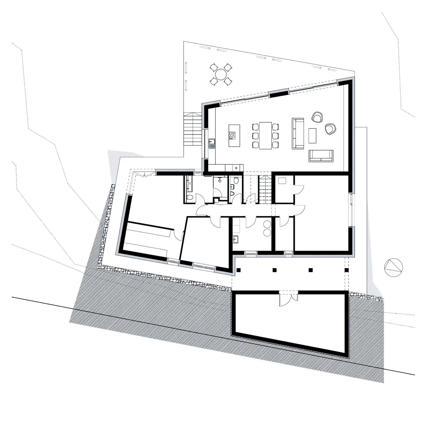
Jahoda Róbert új lakóháza kertvárosias területen épült, ahol az utcakép igen heterogén, az építészeti kontextust pedig a néhány évtizede épült családi házak jelentik. Az utca felé egyszerű kubussal fordul, nem hivalkodik, a gazdag formai koncepció az épületet körbejárva és a kert felől bontakozik ki. A tető a bejárattól indulva lejtősen fedi át a különböző szinteket, majd a kerthez érve hirtelen emelkedve rajzol V alakot. A terasz felett így a szokásostól eltérően nem csökken, hanem megnő a magasság, kinyílva a kert és a kilátás irányába. Erőteljes formájával egyedi karaktert ad a háznak, de nem válik öncélúvá, funkcionálisan is érthető.
Massány Edina tájépítész rutinos profizmusát mutatja, ahogy a kert úgy van jelen egyszerűen természetes mivoltában, hogy nem tolakodó, mégis minden részletén érződik a gondos tervezés. Ilyenformán remekül megtalálták a közös hangot az épület tervezőjével.
Meghajtott papírlap, V-betű, esetleg egy sapka vagy talán lapulevél? Sokféle asszociációs rétege lehet ennek a háznak, amely jelzi, hogy a formálás metaforikus, de mégsem bántóan primer.” Botzheim Bálint építész | Építészfórum, Dinamikus forma
Építész: Jahoda Róbert DLA Tájépítész: Massány Edina Statika: Zoltán Katalin Épületgépészet: Hucker Csaba Épületvillamosság: Beharka Zsolt Világítás: Rio Lámpastúdió Kft. Bútorok:TDL Gyártó Hungary Kft.
Fotó: Bognár Benedek | Réthey-Prikkel Tamás | Jahoda Róbert
