Belső udvaros ház, 2019
Belső udvaros ház, 2019
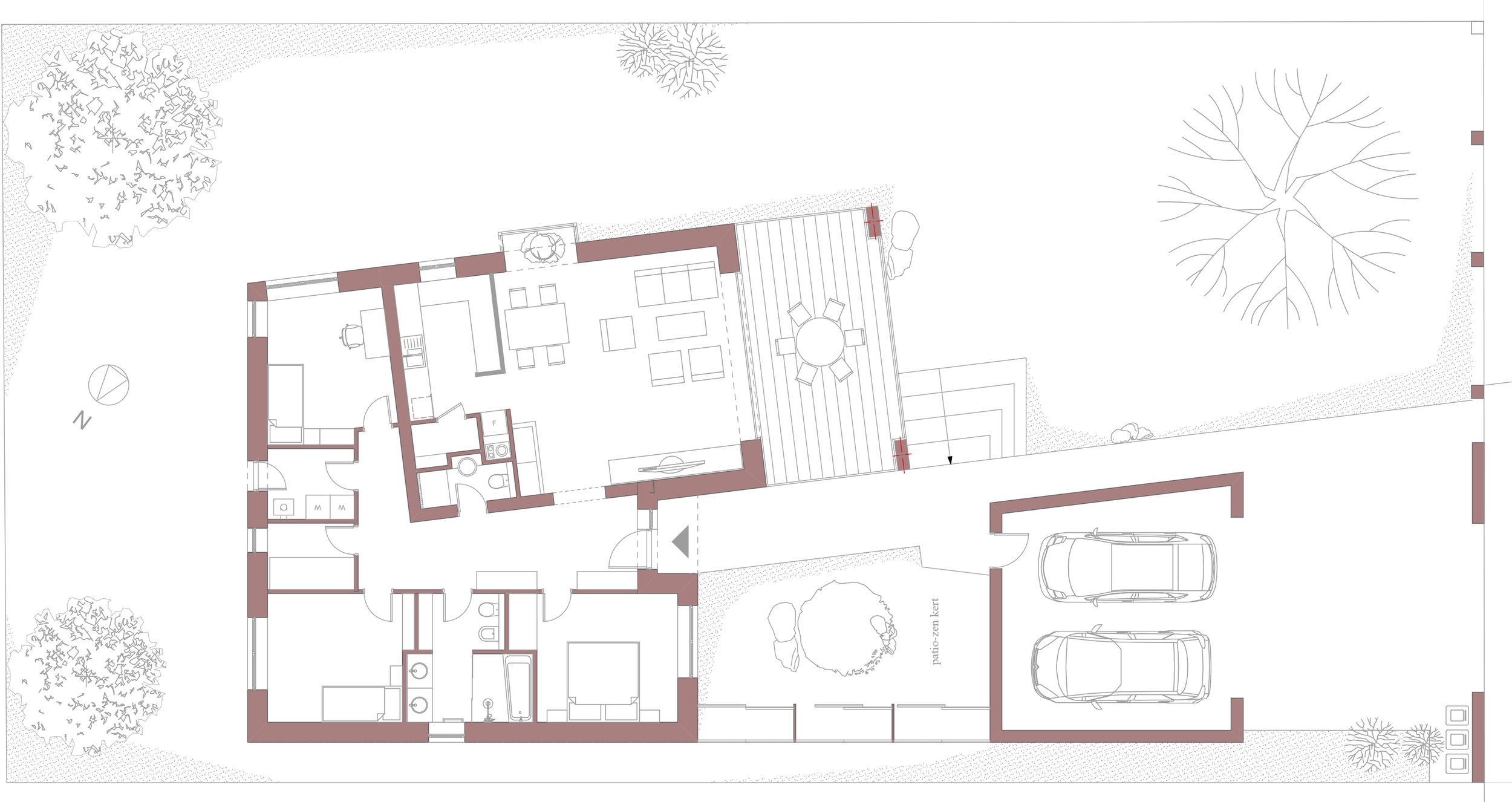
Egy példa arra, hogy előnytelen tájolású telken is van teljesértékű megoldás. Az eredmény: világos, benapozott belső terek és egy intim belső udvar.
Építész: Jahoda Róbert DLA Építész munkatárs: Zwickl Teréz Fotó: Bognár Benedek, Makláry Zoltán
